De Zonkade 15

5247MP Rosmalen (Noord-Brabant)
EUR 595.000 k.k.

Kenmerken

Soort woonhuis
Eengezinswoning
Aangeboden
Sinds 4 maanden
Aantal kamers
5 (4 slaapkamers)
Bouwjaar
2005
Woonopp.
122 m²
Perceelopp.
123 m²
Inhoud.
447 m³

Omschrijving

Wonen aan het water in de geliefde wijk De Watertuinen van De Groote Wielen.

Aan de Zonkade 15 bevindt zich deze prachtige en ruime tussenwoning in één van de meest gewilde wijken van De Groote Wielen: de Watertuinen. Met een werkelijk schitterend en vrij uitzicht over het water biedt deze woning een unieke combinatie van comfort, ruimte en een bijzondere woonbeleving op een toplocatie.

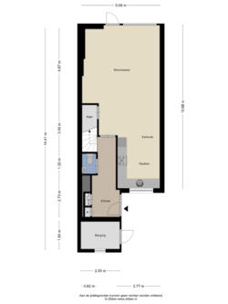
De lichte doorzonwoonkamer met grote raampartijen aan voor- en achterzijde zorgt voor een overvloed aan daglicht en een gevoel van vrijheid en rust. De moderne, open keuken is praktisch en stijlvol ingedeeld en vormt samen met de woonkamer een gezellige leefruimte voor het hele gezin.

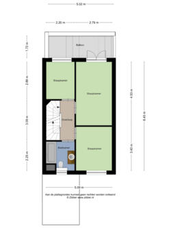
Op de eerste verdieping bevinden zich drie ruime slaapkamers, waarvan de hoofdslaapkamer beschikt over twee openslaande deuren naar het balkon met adembenemend uitzicht over het water. Daarnaast is hier de recent gerenoveerde badkamer, uitgevoerd met een luxe bad-/douchecombinatie, natuurstenen wastafel en toilet.

De tweede verdieping biedt een vierde slaapkamer met dakraam aan de achterzijde, alsook de CV-opstelling, het mechanisch ventilatiesysteem en de wasmachineaansluiting. De woning is volledig geïsoleerd en voorzien van vloerverwarming, wat bijdraagt aan het energiezuinige wooncomfort (energielabel A).

De tuin is een waar paradijs voor liefhebbers van water: vanaf uw eigen vlonder kunt u zwemmen, suppen, uw boot aanleggen of in de winter genieten van schaatsplezier. Ieder seizoen biedt een andere beleving van wat het water u te bieden heeft. Het onderhoudsvriendelijke tuinontwerp zorgt voor een optimale balans tussen comfort en buitenleven.

Ligging en voorzieningen: Parkeren kan eenvoudig voor de deur. Scholen, winkels, sportvoorzieningen en openbaar vervoer zijn op loop- of fietsafstand. Daarnaast liggen natuur- en recreatiegebieden, waaronder de Groote Wielen Plas, letterlijk om de hoek, ideaal voor wandelen, varen en vogels spotten.

Pluspunten op een rij:
- Gelegen in één van de mooiste wijken van De Groote Wielen: de Watertuinen
- Vrij en blijvend uitzicht over het water
- Energiezuinig wonen (energielabel A) met vloerverwarming in de gehele woning
- Ruime, lichte doorzonwoonkamer en moderne open keuken
- Vier royale slaapkamers
- Voorzieningen, winkels en restaurants op fietsafstand
- Natuur en recreatie letterlijk om de hoek

Kenmerken

Overdracht

Vraagprijs
EUR 595.000 k.k.
Aangeboden
Sinds 4 maanden
Status
Beschikbaar
Aanvaarding
In overleg

Bouw

Soort bouw
Bestaande bouw
Soort woonhuis
Eengezinswoning / Tussenwoning
Bouwjaar
2005
Dak
Zadeldak bedekt met Dakpannen
Aantal kamers
5 (4 slaapkamers)
Onderhoud
Binnen Goed / Buiten Goed

Oppervlak

Perceeloppervlakte
123 m²
Woonoppervlakte
122 m²
Overige inpandige ruimte
5 m²
Gebouwgebonden buitenruimte
9 m²
Inhoud.
447 m³

Energie

Verwarming
Vloerverwarming geheel
Warm water
CV-Ketel
Isolatie
Dakisolatie, Muurisolatie, Vloerisolatie, Volledig geïsoleerd, Driedubbel glas

Indeling

Aantal woonlagen
3 woonlagen
Aantal kamers
5 kamers (4 slaapkamers)
Badkamers
1 badkamer
Woonkamer
32,78 m² (Doorzonkamer)
Keuken
11,20 m² (Open keuken)

Tuin

Tuin
Achtertuin, Zonneterras, zonder achterom
Achtertuin
25 m² (5m diep en 5m breed)

Bergruimte

Soort
Aangebouwd steen
Oppervlakte
8,60 m²
Voorzieningen
Voorzien van elektra

 
 

Delen

Deel De Zonkade 15, Rosmalen op:

Foto's De Zonkade 15, Rosmalen

Loading...