Roermondseweg 11 A

6004AN Weert (Limburg)
EUR 395.000 k.k.

Kenmerken

Soort appartement
Benedenwoning
Aangeboden
Sinds 14 uur
Aantal kamers
3 (2 slaapkamers)
Bouwjaar
1981
Woonopp.
120 m²
Inhoud.
350 m³
VvE servicekosten
EUR 112 per maand

Omschrijving

Unieke kans! Royaal begane-grondappartement van circa 120 m², voormalig kantoorpand (bouwjaar 1981), dat momenteel volledig wordt getransformeerd tot een modern, luxe appartement. De oplevering staat gepland voor het einde van het eerste kwartaal 2026.

Kenmerken van het appartement:

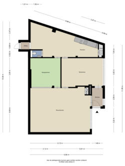
• Riante woonkamer van circa 50 m² met open keuken en veel lichtinval
• Twee ruime slaapkamers
• Moderne badkamer met ligbad en inloopdouche
• Separaat toilet
• Eigen berging
• Privé-entree aan de zijkant van het gebouw
• Toegang tevens mogelijk via de achterzijde van het pand
• Volle eigendom (geen erfpacht)
• Vrij parkeren direct voor de deur

Locatie:
Dit appartement ligt in het rustige Groenewoud-Zuid, op loopafstand van onder meer Aldi, Jumbo, het Van Hornepark en het centrum. Station Weert bevindt zich op circa 8 minuten fietsen en de A2 is binnen ongeveer 3 minuten bereikbaar.

Het appartement wordt volledig gerenoveerd opgeleverd en beschikt na de transformatie over een moderne, gelijkvloerse en zeer ruime indeling. Alle installaties, isolatie (HR++-glas), keuken, sanitair, de verwarmingsinstallatie en de volledige elektrotechnische installatie worden vernieuwd.

Ben je benieuwd naar de mogelijkheden of wil je meer informatie ontvangen? Neem dan snel contact op!

Kenmerken

Overdracht

Vraagprijs
EUR 395.000 k.k.
Aangeboden
Sinds 14 uur
Status
Beschikbaar
Aanvaarding
In overleg

Bouw

Soort bouw
Bestaande bouw
Soort appartement
Benedenwoning / Standaard
Bouwjaar
1981
Aantal kamers
3 (2 slaapkamers)
Onderhoud
Binnen Uitstekend / Buiten Goed

Oppervlak

Woonoppervlakte
120 m²
Overige inpandige ruimte
5 m²
Inhoud.
350 m³

Energie

Verwarming
CV-Ketel, Warmtepomp
Warm water
CV-Ketel, Warmtepomp
Isolatie
Dakisolatie, Vloerisolatie, Dubbel glas

Indeling

Aantal woonlagen
1 woonlaag
Gelegen op
Begane grond
Aantal kamers
3 kamers (2 slaapkamers)
Badkamers
1 badkamer
Woonkamer
49 m² (Standaard woonkamer)
Keuken
23 m² (Open keuken)

Bergruimte

Soort
Inpandig
Oppervlakte
3 m²
Voorzieningen
Voorzien van verwarming, Voorzien van elektra, Voorzien van water

VvE kenmerken

Inschrijving KvK
Ja
Jaarlijkse vergadering
Ja
Periodieke bijdrage
Ja (EUR 112 per maand)
Reservefonds
Ja
Onderhoudsplan
Ja
Opstalverzekering
Ja

 
 

Delen

Deel Roermondseweg 11 A, Weert op:

Foto's Roermondseweg 11 A, Weert

Loading...