Ouddorpsestraat 11

3114BK Schiedam (Zuid-Holland)
EUR 465.000 k.k.

Kenmerken

Soort woonhuis
Eengezinswoning
Aangeboden
Sinds 3 maanden
Aantal kamers
5 (4 slaapkamers)
Bouwjaar
1911
Woonopp.
128 m²
Perceelopp.
99 m²
Inhoud.
465 m³

Omschrijving

Op zoek naar een schitterend gerenoveerde eengezinswoning? Dan is deze woning in de gezellige en kindvriendelijke wijk De Gorzen precies wat u zoekt!

Deze royale woning biedt verrassend veel ruimte en heeft maar liefst vier slaapkamers, twee badkamers en een fijne achtertuin.

Gelegen op eigen grond en op loopafstand van winkels, scholen en gezellige horecagelegenheden, is dit een ideale woning voor wie droomt van een huis met karakter in een levendige, sociale en kindvriendelijke buurt. Bovendien is parkeren hier nog altijd gratis!

Indeling
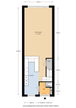
Begane grond:
Entree, ruime hal met toilet en toegang tot de verrassend ruime woonkamer. Moderne open keuken met kookeiland en voorzien van alle luxe. Royale woonkamer met toegang tot de achtertuin.

Eerste verdieping
De overloop biedt toegang tot de open badkamer en master bedroom, de moderne badkamer is uitgerust met een ligbad en inloopdouche. Daarnaast is er een tweede slaapkamer aan de achterzijde. In de hal zit een aparte toilet.

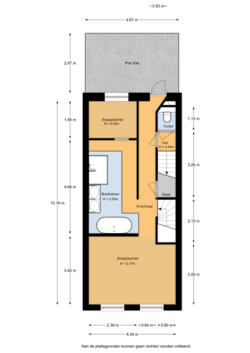
Tweede verdieping
Op de bovenste verdieping bevinden zich nog twee ruime slaapkamers, daarnaast heeft deze verdieping een eigen badkamer met ligbad, douche.

BIJZONDERHEDEN
- Energielabel C
- Cv-ketel bouwjaar 2015
- Volledig voorzien van dubbel glas, deels houten en deels kunststof ramen en kozijnen;
- Elektrische installatie vernieuwd in 2025 ( 3 fase, 11 groepen);
- Woonoppervlakte c.a. 128 M2
- Oplevering in overleg.

Kenmerken

Overdracht

Vraagprijs
EUR 465.000 k.k.
Aangeboden
Sinds 3 maanden
Status
Beschikbaar
Aanvaarding
In overleg

Bouw

Soort bouw
Bestaande bouw
Soort woonhuis
Eengezinswoning / Tussenwoning
Bouwjaar
1911
Dak
Zadeldak bedekt met Dakpannen
Aantal kamers
5 (4 slaapkamers)
Onderhoud
Binnen Uitstekend / Buiten Goed

Oppervlak

Perceeloppervlakte
99 m²
Woonoppervlakte
128 m²
Gebouwgebonden buitenruimte
14 m²
Externe bergruimte
7 m²
Inhoud.
465 m³

Energie

Verwarming
CV-Ketel
Warm water
CV-Ketel
Isolatie
Dakisolatie

Indeling

Aantal woonlagen
3 woonlagen
Aantal kamers
5 kamers (4 slaapkamers)
Badkamers
2 badkamers
Woonkamer
56 m² (Doorzonkamer)
Keuken
10 m² (Open keuken)

Tuin

Tuin
Achtertuin, zonder achterom
Achtertuin
30 m² (6,10m diep en 4,97m breed)

Bergruimte

Soort
Inpandig
Voorzieningen
-

 
 

Delen

Deel Ouddorpsestraat 11, Schiedam op:

Foto's Ouddorpsestraat 11, Schiedam

Loading...