Straat van Corsica 177

3825VB Amersfoort (Utrecht)
EUR 595.000 k.k.

Kenmerken

Soort woonhuis
Eengezinswoning
Aangeboden
Sinds 1 maand
Aantal kamers
5 (4 slaapkamers)
Bouwjaar
2011
Woonopp.
131 m²
Perceelopp.
144 m²
Inhoud.
483 m³

Omschrijving

Vraagprijs EUR 595.000

Wij hebben in Amersfoort in de populaire wijk “Vathorst” in de verkoop gekregen een werkelijk schitterende, geheel instap-klare, ruime hoekwoning.
Door de uitbouw (vanaf 2017) is een zeer grote woonkamer gecreëerd met (grote lichtkoepel) en een royaal, onderhoudsvriendelijk terras (met openslaande deuren). De woning is van 2011 (energielabel A+), zeer goed onderhouden en effectief ingericht met veel opbergruimte zowel in het huis als daarbuiten (2 bergingen).
U koopt van de eerste bewoners. Bel snel voor een bezichtigingsafspraak.

Indeling
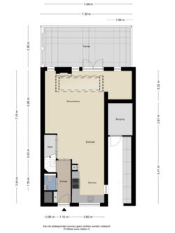
Begane grond
Via de voortuin met terras betreed je de hal met toilet en trap naar boven.
De uitgebouwde woonkamer bevindt zich aan de achterzijde van de woning, met veel licht (lichtkoepel) en toegang tot het brede terras.
Aan de voorzijde is de moderne keuken gesitueerd met de eethoek als overgang naar de woonkamer.

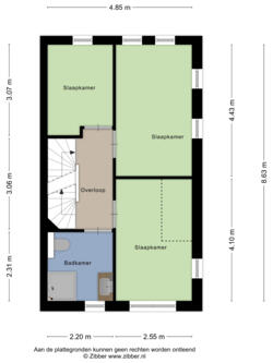
1e verdieping
Op deze verdieping bevinden zich 3 slaapkamers, waarvan 2 grote- en 1 kleinere slaapkamer. De badkamer is voorzien van douchehoek, wastafel, toilet en radiator.

2e verdieping
Op deze verdieping is een zeer grote slaapkamer gecreëerd en een zeer grote inloop kast/ruimte.

In de tuin bevinden zich 2 bergingen en een overkapping. Het terras bevindt zich aan de voorzijde van de woning.
De woning is voorzien van vloerverwarming, 13 zonnepanelen en 2 airco’s

Bijzonderheden
- Een royale, uitgebouwde (2017) hoekwoning in de populaire woonwijk “Vathorst te Amersfoort.
- Ruime woonkamer met lichtkoepel en royaal terras.
- Zeer goed onderhouden en effectief ingericht zowel binnen als buiten (2 bergingen)
- Energielabel A+.
- Kopen van de eerste bewoners.
- Voorzien van vloerverwarming, 13 zonnepanelen en 2 airco’s.

Kenmerken

Overdracht

Vraagprijs
EUR 595.000 k.k.
Aangeboden
Sinds 1 maand
Status
Beschikbaar
Aanvaarding
In overleg

Bouw

Soort bouw
Bestaande bouw
Soort woonhuis
Eengezinswoning / Eindwoning
Bouwjaar
2011
Dak
Zadeldak bedekt met Dakpannen
Aantal kamers
5 (4 slaapkamers)
Onderhoud
Binnen Uitstekend / Buiten Uitstekend

Oppervlak

Perceeloppervlakte
144 m²
Woonoppervlakte
131 m²
Overige inpandige ruimte
5 m²
Gebouwgebonden buitenruimte
28 m²
Externe bergruimte
5 m²
Inhoud.
483 m³

Energie

Verwarming
CV-Ketel
Warm water
CV-Ketel
Isolatie
Dakisolatie, Muurisolatie, Vloerisolatie, Dubbel glas, Volledig geïsoleerd

Indeling

Aantal woonlagen
3 woonlagen
Aantal kamers
5 kamers (4 slaapkamers)
Badkamers
1 badkamer
Woonkamer
37 m² (Standaard woonkamer)
Keuken
8,30 m² (Open keuken)

Tuin

Tuin
Voortuin, zonder achterom
Voortuin
39 m² (5m diep en 7,50m breed)

Bergruimte

Soort
Vrijstaand hout
Oppervlakte
4,80 m²
Voorzieningen
Voorzien van elektra

 
 

Delen

Deel Straat van Corsica 177, Amersfoort op:

Foto's Straat van Corsica 177, Amersfoort

Loading...